Strategic Development.
Disciplined Investment.
Long-Term Value.
R&R Property Group is the development and investment division of R&R — focused on acquiring, entitling, developing, and delivering high-performing residential and mixed-use real estate assets. We approach every project with a builder’s mindset and an investor’s discipline.
Coming In 2026!
-

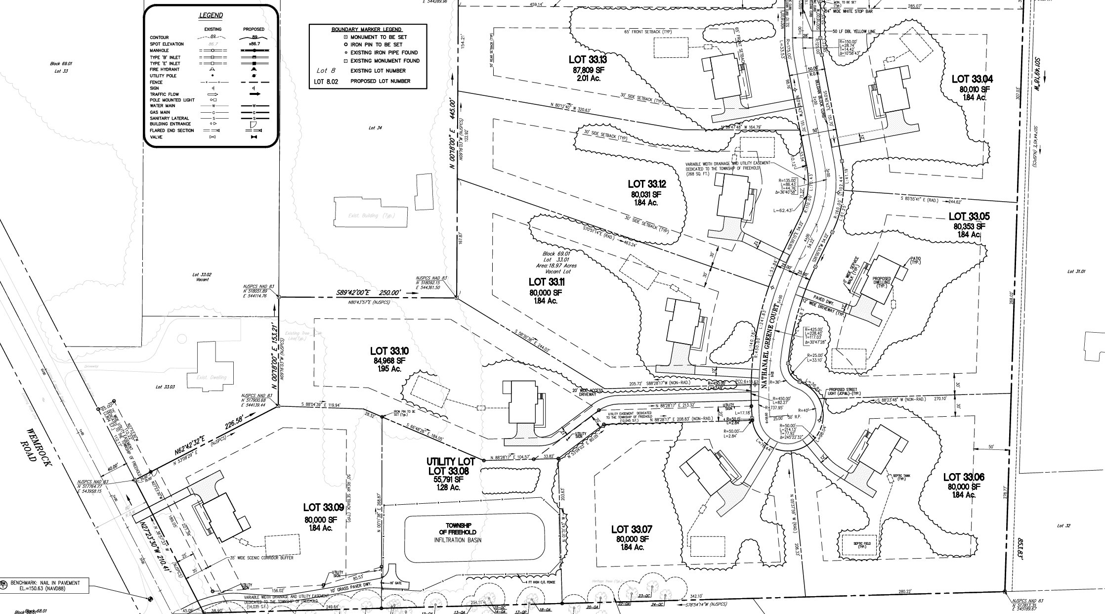
Freehold NJ (9 LOT Subdivision) COMING FALL 2026
Introducing an exceptional new 9-lot luxury residential community coming Fall 2026 in Freehold, NJ — one of Central New Jersey’s most desirable suburban markets. Freehold offers an ideal blend of commuter convenience, thriving retail and entertainment options, abundant parks and recreation, and a family-friendly lifestyle. The area features everything from historic downtown charm and shopping at Freehold Raceway Mall to scenic nature preserves and community events throughout the year.
Key Home Features (Per Home):
6 Spacious Bedrooms
5.5 Designer Bathrooms
Finished Basement (Flexible Living Space)
Private Outdoor Pool & Patio
Approx. 4,500–6,000 Sq Ft of Custom Living Space
3+ Car Garage
Generous Private Lot
Each residence has been thoughtfully designed to blend modern luxury with timeless appeal. Inside, expansive open-concept living spaces will be anchored by a gourmet chef’s kitchen featuring premium cabinetry, top-tier appliances, and a large island perfect for everyday living and entertaining. Wide plank hardwood flooring, elegant lighting, and custom trim details elevate every room.
The primary suite serves as a private sanctuary with a spa-inspired bath, designer tilework, oversized walk-in closets, and panoramic views. Additional ensuite bedrooms provide comfort and privacy for family and guests, while versatile bonus rooms can serve as home offices, libraries, or play spaces.
The fully finished basement adds significant living space — ideal for a home theater, recreation room, bar, fitness area, or guest suite. Step outside to your private outdoor pool oasis, complete with spacious decking and room for lounging, al fresco dining, and summer gatherings.
This limited-release community will offer quality construction, premium finishes, and opportunities for buyer personalization. Located minutes from major roadways, excellent schools, dining, shopping, parks and recreation, and commuter access to New York City and beyond, these homes deliver luxury living in a premier Central Jersey setting.
-

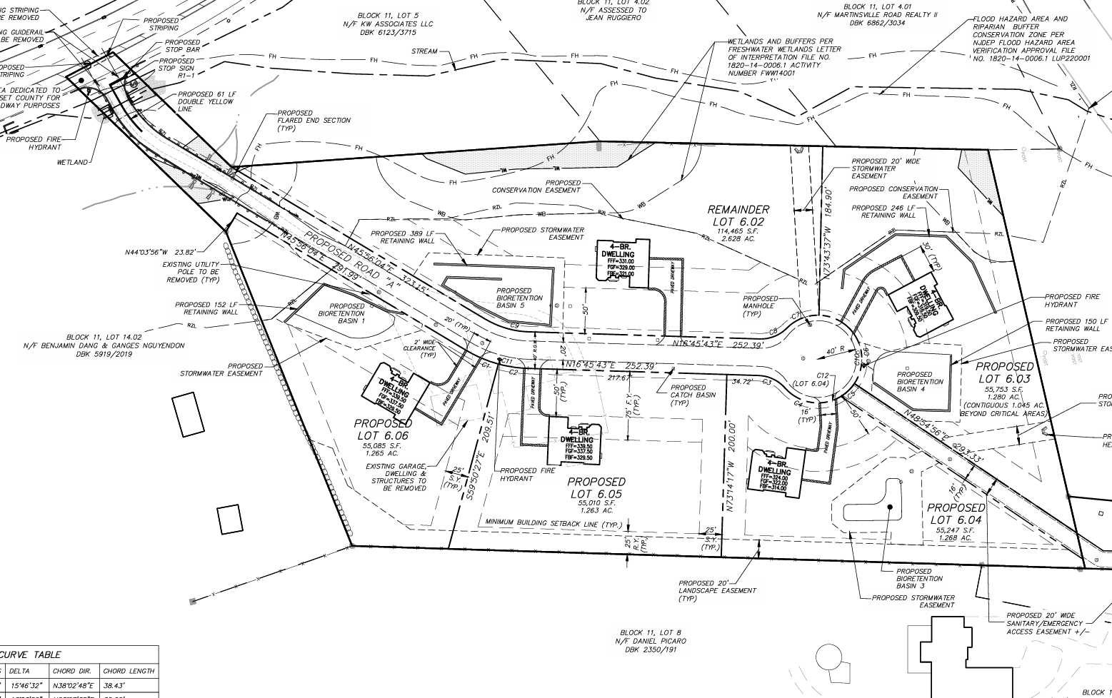
Warren Township NJ (5 LOT Subdivision) COMING FALL 2026
Warren Township, NJ – 5 Lot Luxury Subdivision | Coming Fall 2026
Introducing an exclusive 5-lot luxury subdivision in Warren Township, NJ, coming Fall 2026. These architecturally designed homes will offer refined living, modern elegance, and exceptional craftsmanship in one of Somerset County’s most sought-after communities.
Each residence features:
4 Spacious Bedrooms
5 Full Bathrooms
Finished Basement
Approx. 4,000–5,000+ Sq Ft (customizable options available)
2–3 Car Garage
Expansive private lots
Designed with today’s lifestyle in mind, the open-concept floor plan will showcase soaring ceilings, oversized windows, and premium finishes throughout. The gourmet kitchen will include custom cabinetry, a large center island, professional-grade appliances, and seamless flow into the great room—perfect for entertaining.
The primary suite will serve as a private retreat, featuring a spa-inspired bath with a freestanding soaking tub, oversized walk-in shower, and generous closet space. Each additional bedroom will include its own dedicated bath, providing comfort and privacy for family and guests.
The fully finished basement adds exceptional living space—ideal for a home theater, gym, recreation room, guest suite, or private office.
Located in a prestigious residential setting with top-rated schools, convenient access to major highways, and proximity to upscale dining and shopping, this limited 5-home opportunity offers luxury, privacy, and timeless design.